Kolekcja Nicolo to esencja nowoczesnego designu. Wyróżnia się nowoczesnym tłoczeniem na skrzydle, które dodaje drzwiom charakteru. Modele z przeszkleniem wzbogacone są dodatkowo o ozdobny panel ze stali nierdzewnej, który idealnie komplementuje minimalistyczny, ale wyrafinowany wygląd całej kolekcji.
Elementy konstrukcyjne drzwi
Wyposażenie drzwi
W zestawie:
Drzwi KR Center spełniają wymagania prac termoizolacyjnych Programu Czyste Powietrze.
Dzięki temu istnieje możliwość uzyskania dotacji do wymiany drzwi zewnętrznych.
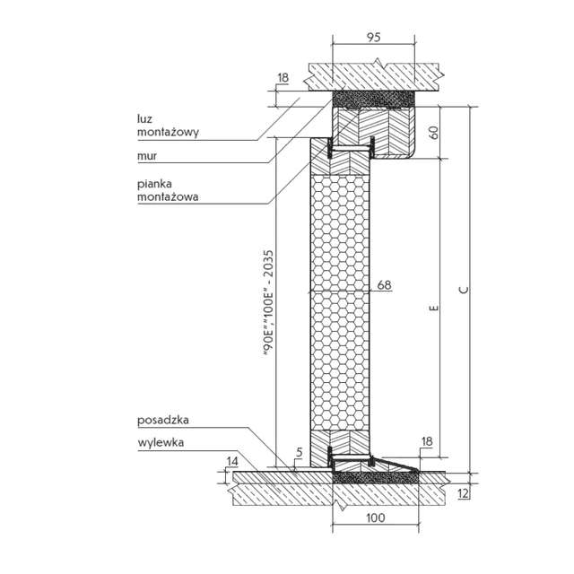
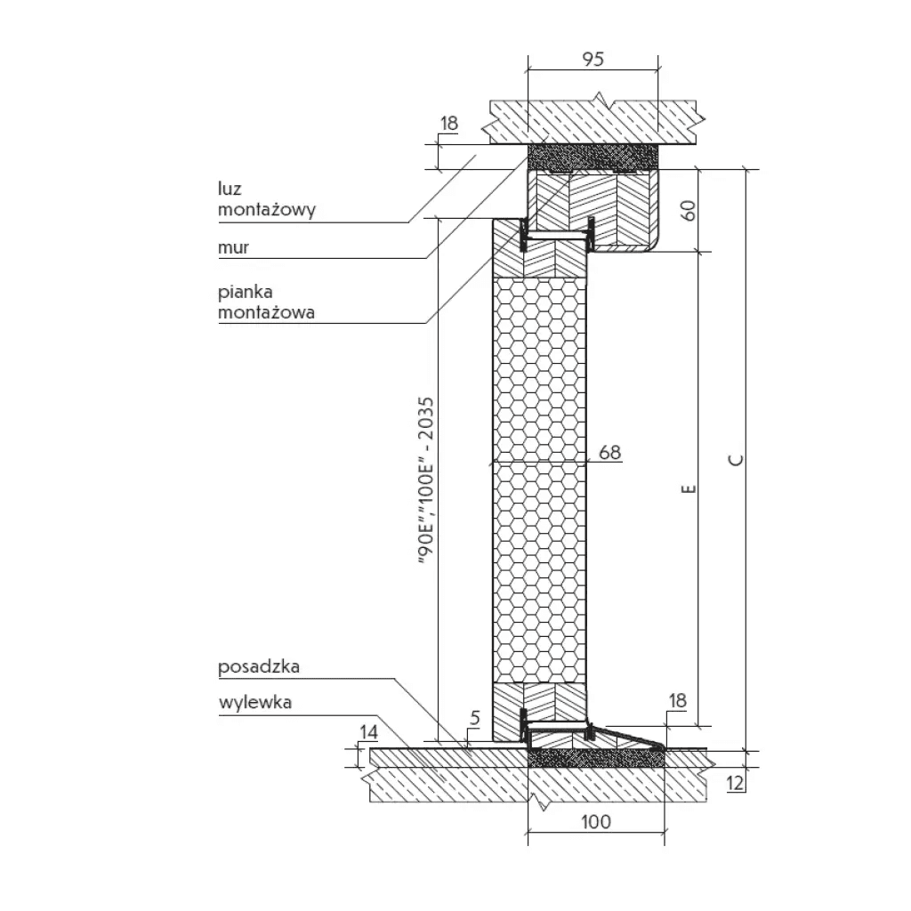
Elementy konstrukcyjne drzwi
- wypełnienie termoizolacyjną płytą EPS
- blacha ocynkowana ogniowo
- ramiak z drewna klejonego warstwowo na całym obwodzie
- bolce antywyważeniowe
- okleina PCV w wybranym kolorze
- ościeżnica drewnianiana - pokryta tą samą okleina co skrzydło
Wyposażenie drzwi
- zamek główny i pomocniczy (trójbolcowy)
- uszczelki w skrzydle, ościeżnicy i progu
- próg aluminiowy z wkładką
- trzy zawiasy
W zestawie:
- Skrzydło
- Ościeżnica drewniana
- Próg
- Klamka
- Wkładka

















